Nuovo
330000.00
1
Descrizione
Bolzano - Bozen - | Cod. 1664149
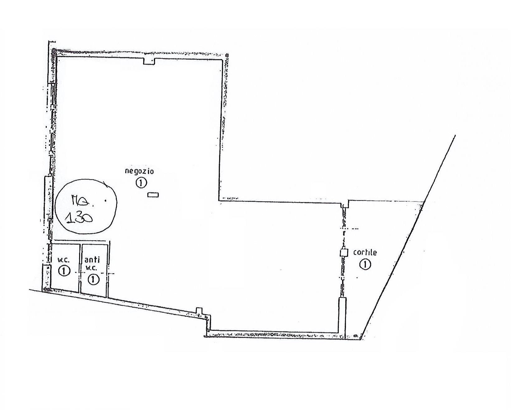
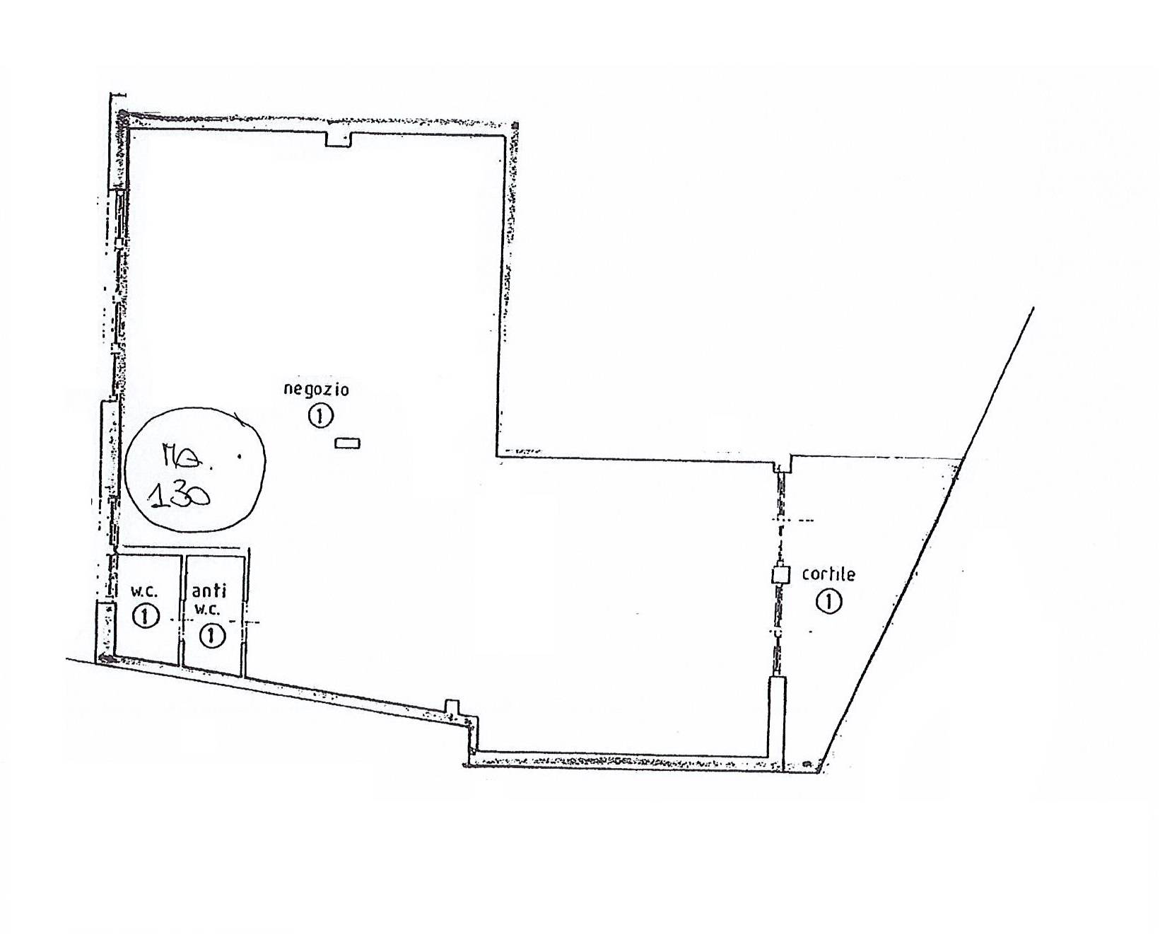
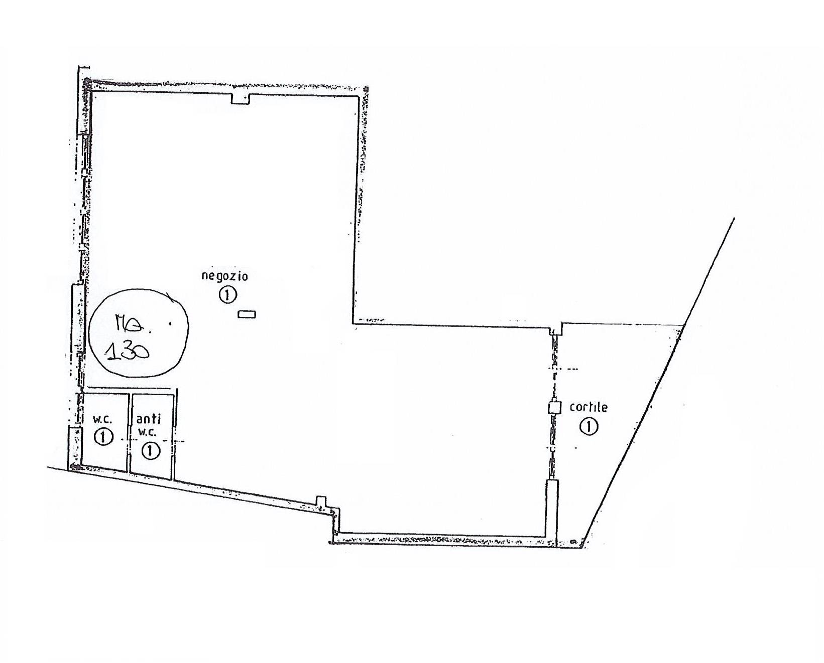
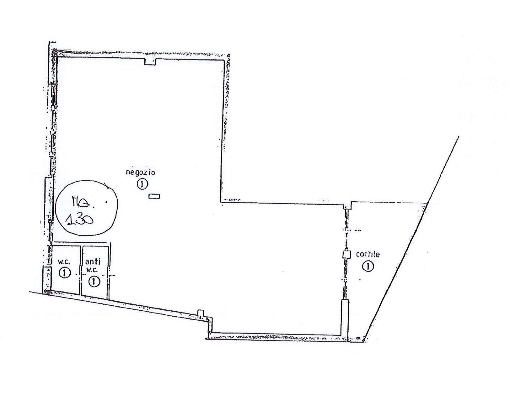
Negozio - Bolzano - Bozen Bolzano
Vendiamo negozio in zona residenziale,
Strada interna a via Milano.
Negozio di 130 mq commerciali con anti wc e wc finestrato.
Vera occasione, immobile dato in locazione con rendita al 5%,
Contratto di locazione di 6 anni.
Possibilità di acquisto libero senza locazione!












